Newtonstraat 35B

Schiedam

verkocht onder voorbehoud

€ 320.000,- k.k.

Woningtype appartement
Bouwjaar 1933
Woonoppervlakte 115 m²
Aantaal slaapkamers 4

Kenmerken

Overdracht

Vraagprijs
€ 320.000,- k.k.
Status
verkocht onder voorbehoud
Aanvaarding
in overleg

VvE checklist

Inschrijving KVK
Ja
Jaarlijkse vergadering
Ja
Periodieke bijdrage
Ja (75,00 per maand)
Reservefonds aanwezig
Ja
Onderhoudsplan
Nee
Opstalverzekering
Ja

Bouw

Soort woning
appartement
Soort appartement
maisonnette
Aantal woonlagen
2
Woonlaag
2
Bouwjaar
1933
Open portiek
nee
Onderhoud binnen
goed
Onderhoud buiten
goed
Voorzieningen
tv kabel, schuifpui
Isolatie
dubbel glas

Energie

Verwarming
cv ketel
Warm water
cv ketel
C.V.-ketel
gas gestookte combi-ketel uit 2020, eigendom

Oppervlakten en inhoud

Woonoppervlakte
115 m²
Buitenruimte oppervlakte
10 m²

Indeling

Aantal kamers
5

Buitenruimte

Ligging
aan rustige weg, in woonwijk

Garage / Schuur / Berging

Garage
geen garage
Lees meer

Omschrijving

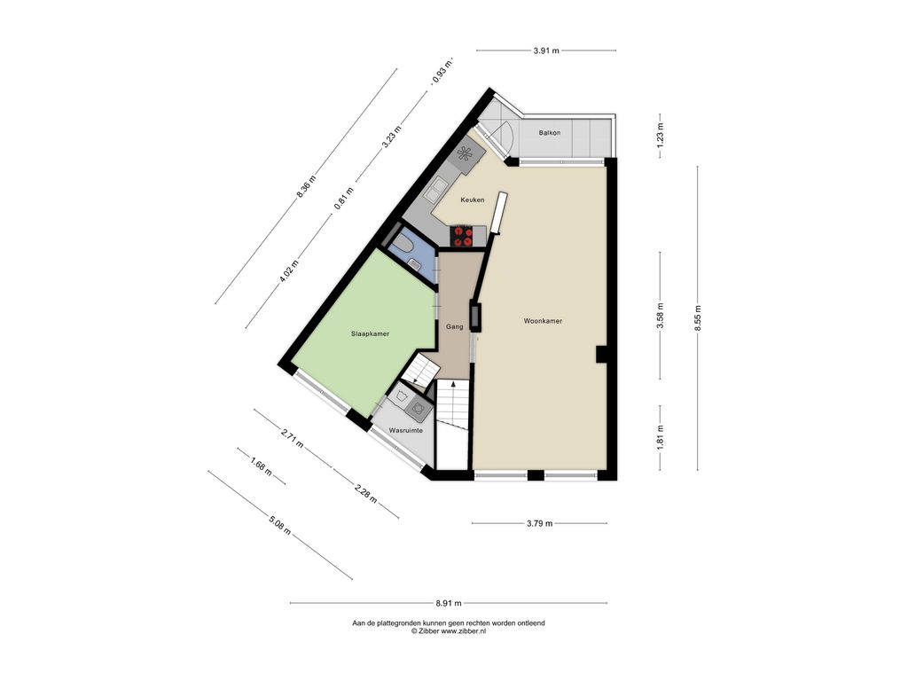
Royale 5-kamerwoning met een bijzonder unieke speelse indeling en maar liefst een gebruiksoppervlakte wonen van 115 m2, grote kamers, twee balkons en kunststof kozijnen.

Deze sfeervolle jaren ‘30 woning beschikt naast de bijzondere indeling onder meer over grotendeels glad gestuukte wanden (2021), een grote woonkamer met schuifpui naar het balkon, keuken met hoekopstelling v.v. inbouwapparatuur, ruim toilet, 4 grote slaapkamers waarvan 1 met openslaande deuren naar het 2e balkon en een badkamer.

De dubbele bovenwoning heeft een eigen entree op de begane grond en twee woonlagen, en heeft een hoekvorm met brede voorgevel waardoor de woning een unieke speelse indeling heeft.

Gelegen in de wijk Schiedam-Oost. Het NS-station Schiedam-Centrum, metro, het stadshart met vele winkels & horecagelegenheden, basisscholen, supermarkten en bushalte met lijnen naar Schiedam CS en Rotterdam CS liggen nabij. De uitvalswegen A13, A20 en A4 zijn binnen enkele minuten te bereiken met de auto.


Begane grond: eigen entree met authentieke houten voordeur; hal met trapopgang.

1e woonlaag: overloop/gang met ruim toilet en toegang tot een slaapkamer en de woonkamer (stalen deur); grote slaapkamer van 11 m2, met toegang tot een separate praktische ruimte met aansluiting wasmachine; grote doorzonwoonkamer met fraaie strakke afwerking, ruime zithoek aan de voorzijde en aan de achterzijde de eethoek een kozijn met schuifpui naar het balkon; halfopen keuken met separate deur naar het balkon en een hoekopstelling v.v. natuurstenen aanrechtblad en inbouwapparatuur: vaatwasmachine, oven, inductie kookplaat, vlakschermafzuigkap en magnetron, alsmede een losse koelkast met vriesvak; woonkamer en keuken zijn samen 37 m2; de 1e woonlaag heeft een balkon aan de achterzijde en is afgewerkt (2021)met glad gestuukte wanden en grotendeels een plavuizenvloer v.v. vloerverwarming (in de woonkamer en de gang).

2e woonlaag: overloop/gang met kastruimte (mogelijkheid om hier de combiketel te plaatsen), met dakvenster; royale voorslaapkamer van 15 m2 met vaste kast en schuifkastenwand; grote achterslaapkamer van 13 m2 met vaste kasten en kozijn v.v. openslaande deuren naar het 2e balkon; badkamer met separate deur naar het balkon, opstelling combiketel (2020), ligbad met douchscherm en whrilpool, wastafelmeubel en handoekradiator; grote voorslaapkamer van 11 m2; de 2e woonlaag heeft rechte gevels, een 2e balkon aan de achterzijde en is afgewerkt met deels glad gestuukte wanden en laminaatvloeren van 2025.

Bijzonderheden: bouwjaar 1933; eigen grond; een kleine VvE met 2 woningen, bijdrage VvE € 75,00 per maand.
Lees meer

Media

Locatie

Interesse?

Vul onderstaande gegevens in en wij nemen contact met u op.