Zeegat 10

Hellevoetsluis

verkocht onder voorbehoud

€ 435.000,- k.k.

Woningtype appartement
Bouwjaar 1978
Woonoppervlakte 101 m²
Aantaal slaapkamers 2

Kenmerken

Overdracht

Vraagprijs
€ 435.000,- k.k.
Status
verkocht onder voorbehoud
Aanvaarding
in overleg

VvE checklist

Inschrijving KVK
Ja
Jaarlijkse vergadering
Ja
Periodieke bijdrage
Ja (379,86 per maand)
Reservefonds aanwezig
Ja
Onderhoudsplan
Ja
Opstalverzekering
Ja

Bouw

Soort woning
appartement
Soort appartement
benedenwoning
Aantal woonlagen
1
Woonlaag
1
Bouwjaar
1978
Open portiek
nee
Onderhoud binnen
redelijk_tot_goed
Onderhoud buiten
goed
Voorzieningen
rolluiken, buitenzonwering, schuifpui
Isolatie
vloerisolatie, dubbel glas

Energie

Energielabel
C
Verwarming
cv ketel
Warm water
cv ketel
C.V.-ketel
combi-ketel, eigendom

Oppervlakten en inhoud

Woonoppervlakte
101 m²
Inpandige ruimte oppervlakte
16 m²
Bergruimte oppervlakte
5 m²
Buitenruimte oppervlakte
31 m²

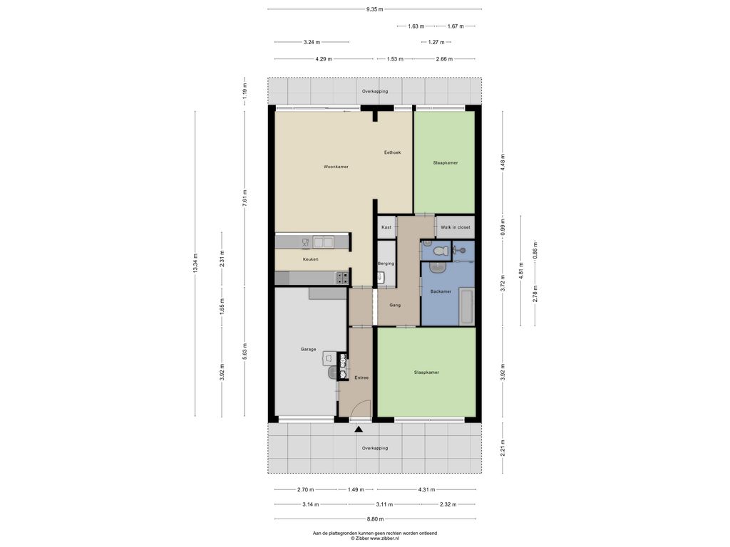
Indeling

Aantal kamers
3

Buitenruimte

Ligging
aan park, aan rustige weg, in woonwijk, vrij uitzicht, aan vaarwater
Tuin
achtertuin met een oppervlakte van 97 m² en is gelegen op het zuidwesten

Garage / Schuur / Berging

Garage
inpandige garage
Schuur/berging
vrijstaand hout
Lees meer

Omschrijving

Royale woning met een oppervlakte van 117 m2, 3 kamers, inpandige garage en grote tuin van 100 m2. Gunstig en fraai gelegen aan de Zeedijk langs het Haringvliet, met gunstige zonligging van de tuin op het zuidwesten en vrij uitzicht op een park en de Zeedijk.

De woning heeft gebruiksoppervlakte wonen van 101 m2, een garage van 16 m2 en een eigen entree vanaf de straat. De garage heeft een elektrisch bedienbare sectionaal deur, maar kan tevens dienen als praktijkruimte of werkruimte aan huis of (deels) bij de woning worden getrokken ten behoeve van een verplaatsing van de keuken en een nog grotere woonkamer.

De woning beschikt onder meer over een tuingerichte woonkamer van circa 40 m2 met brede schuifpui, vrij uitzicht op de tuin en de Zeedijk, ruimte voor een eethoek en een halfopen keuken, 2 grote slaapkamers van circa 17 en 12 m2, een grote badkamer, een praktische toegang van de hal naar de garage, elektrisch bedienbare rolluiken en elektrisch bedienbare buitenzonweringen.

Gunstig gelegen op de begane grond van het geliefde appartementencomplex Zeegat, fraai aan de Zeedijk en het Haringvliet. Met vrij uitzicht, aan een rustige weg en nabij winkelcentrum & voorzieningen.


Indeling en omschrijving: entree/gang met praktische toegang tot de garage en de meterkast; centrale hal met gang, met bergruimte v.v. opstelling combiketel en unit mechanische ventilatie, ruim toilet, kast en grote bergkast/inloopkast; grote voorslaapkamer van circa 17 m2; grote badkamer met ligbad, wastafelmeubel, doucheruimte en designradiator; ruime slaapkamer van circa 13 m2; tuingerichte woonkamer van circa 40 m2 met brede schuifpui, zicht op de tuin en de Zeedijk, ruimte voor een eethoek en een halfopen keuken met 2x rechte opstelling; de woning heeft een parketvloer en granolwanden.

Inpandige garage van 17 m2, met onder meer elektrisch bedienbare sectionaal deur, close-in-boiler en keukenblok.

Grote tuin van 100 m2, met gunstige zonligging op het zuidwesten, fraai vrij zicht op een park en de Zeedijk en onderhoudsvriendelijk aangelegd, met zonneterras, split, siertuin en houten tuinhuisje.

Bijzonderheden: bouwjaar 1978; vloerisolatie; isolatieglas; bijdrage VvE € 379,00 per maand.
Lees meer

Media

Locatie

Interesse?

Vul onderstaande gegevens in en wij nemen contact met u op.